M4 w rozkładzie z balkonem Retkinia

lokalizacja: Łódź, Przełajowa

420 000,00 PLN

7 929,00 PLN

Opis nieruchomości

Nieruchomość

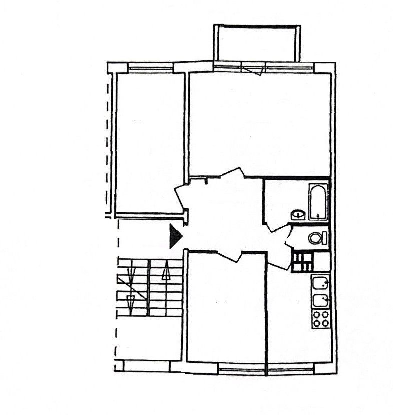
Mieszkanie 3 pokojowe do odświeżenia/remontu. Lokal na II piętrze w niskim bloku przy ulicy Przełajowej, na zielonej Retkini. W mieszkaniu był przeprowadzony remont Kuchni i łazienki. Okna pcw dwuszybowe.

Powierzchnia lokalu to 52,97 m². Mieszkanie składa się z:
- salonu z wyjściem na balkon,
- dwóch ustawnych sypialni,
- kuchni,
- łazienki,
- oddzielnego WC,
- dużego przedpokoju,
- komórki lokatorskiej w piwnicy.

 

Stan prawny: Spółdzielczo-własnościowe prawo do lokalu z możliwością założenia Księgi wieczystej.
Czynsz 490 zł (przy jednej osobie z zaliczkami). Dodatkowo prąd i gaz.


Lokalizacja

Dobrze rozwinięta infrastruktura handlowo-usługowa w sąsiedztwie. Pod blokiem sklep spożywczy. Przystanki autobusowe 3 min pieszo. Spacerem na Lublinek około 10-15 min.
Okna wychodzące na dwie strony świata: na południowy-zachód oraz północny-wschód.

 

 



Uwaga !!!
Opis oferty zawarty w ogłoszeniu sporządzany został na podstawie oględzin nieruchomości oraz informacji uzyskanych od właściciela, może podlegać aktualizacji i nie stanowi oferty określonej w art. 66 i następnych K.C. Prezentacja nieruchomości jest możliwa tylko w przypadku podpisania umowy pośrednictwa z agentem. Właściciel wyraża zgodę na oglądanie nieruchomości tylko po uprzednio umówionym spotkaniu. Kontakt do agenta #781290468 7pietro.michal@gmail.com

Kontakt do opiekuna:

7 Piętro

Michał Biernacki
Nieprawidłowy adres E-mail
Mapa

Strona korzysta z plików cookie w celu realizacji usług zgodnie z Polityką prywatności. Możesz określić warunki przechowywania lub dostępu do cookie w Twojej przeglądarce.